Back
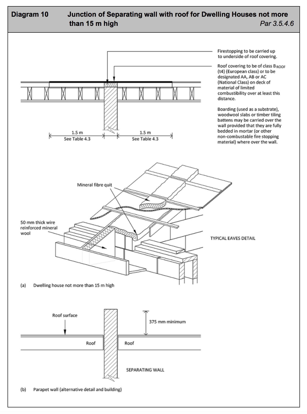
TGD B Vol. 2 Diagram 10 Junction of Separating wall with roof for Dwelling Houses not more than 15m high
TGD B Vol. 2 Diagram 10 Junction of Separating wall with roof for Dwelling Houses not more than 15m high
Diagram•4 Dec 2024
Back
Diagram•4 Dec 2024

Join 20,000+ building professionals already using Mason every month to reduce compliance risks and deliver projects 90% faster
